
Matkailukeskus Rauhalahti, Kuopio
Suomi Camping hankki Salvokselta kymmenen täysin valmista hirsirakenteista ...
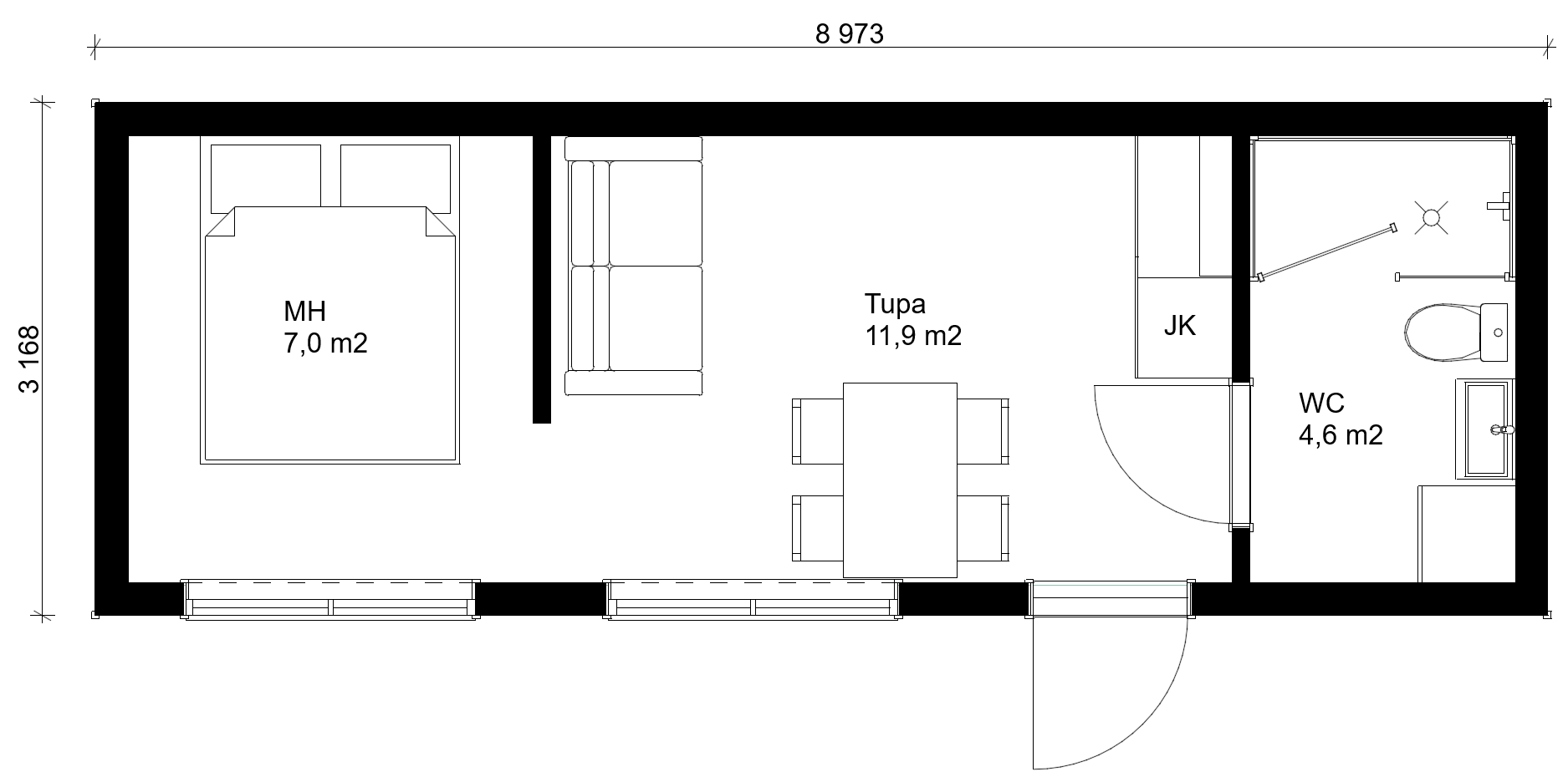
Veisto 29 mallista on saatavilla myös tämä harjakattoinen malli, joka istuu luontevasti jylhiin maisemiin. Suuret pystypuitteiset maisemaikkunat kehystävät ympäröivän luonnon osaksi sisätilaa ja tuovat tilaan runsaasti valoa. Kompakti ja toimiva pohjaratkaisu tarjoaa mukavan majoituksen 2-4 henkilölle.
Varustelumahdollisuudet:
Suunnitellaan yhdessä liiketoiminnallesi hieno majoituskokonaisuus. Voit varata maksuttoman suunnitteluajan lomakkeella tai mikäli sinulle jäi kysyttää, soita meille ja jutellaan lisää.