
Hirsimökki juhannukseksi – valmista vähällä vaivalla
Sorvojat nauttivat nyt täysillä mökkeilystä uudessa Vuolu-mökissään, joka v...
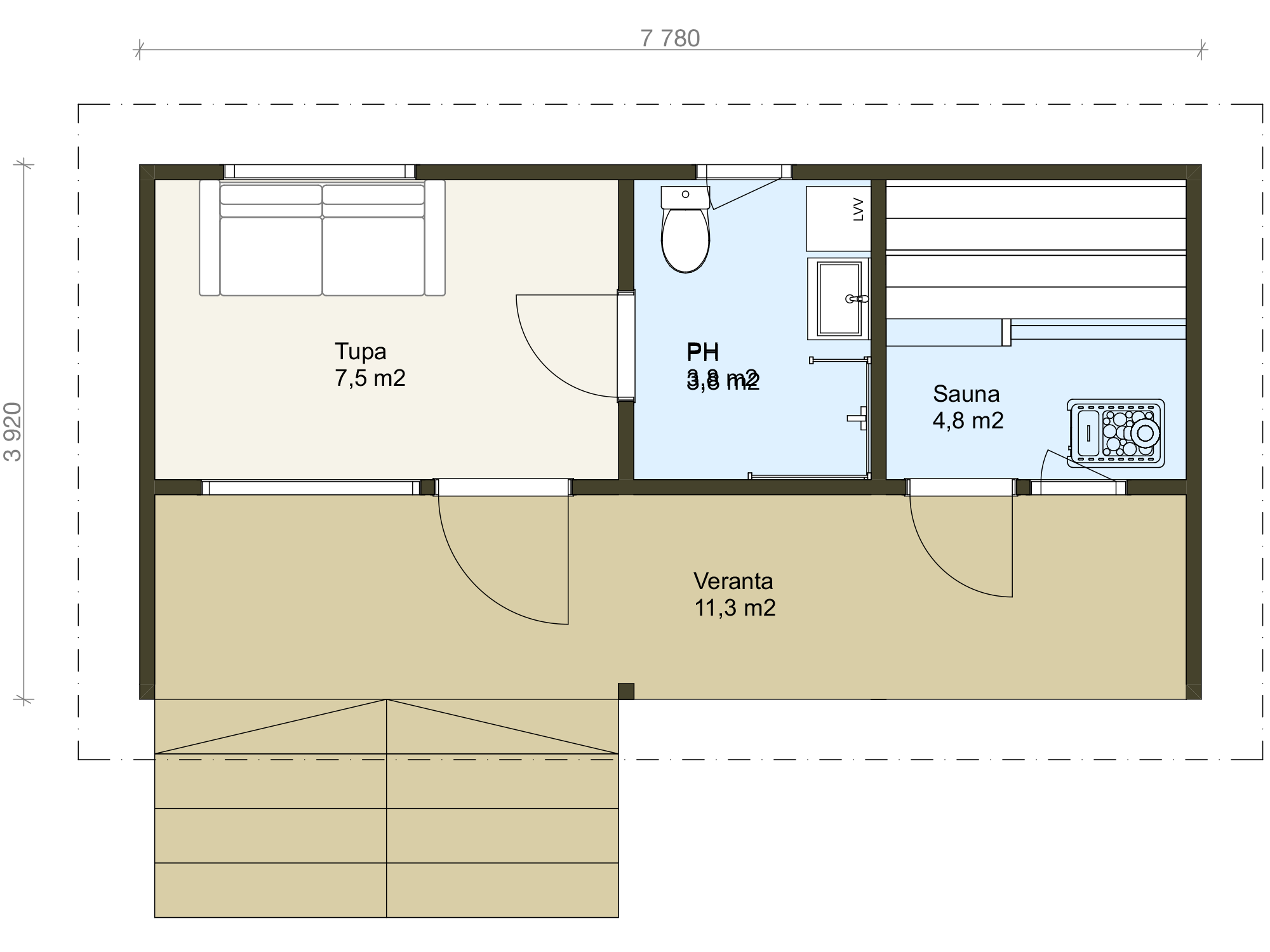
Tämä upea saunatupa tarjoaa kaiken tarpeellisen kompaktissa paketissa. Tilava tupa ja sauna yhdessä muodostavat täydellisen kokonaisuuden, joka täyttää kaikki saunojan toiveet.
Salvoksen saunatupa malleissa korostuvat tilan tehokas hyödyntäminen, yksinkertaisuus ja toimivuus. Mallistostamme löydät sekä nuorekkaan ja modernin muotoilun että perinteisempiä vaihtoehtoja. Veisto-saunatupa toimitetaan täysin valmiina tontillesi ja on käyttövalmis vain kahdessa tunnissa.
Ota yhteyttä jo tänään ja suunnitellaan yhdessä unelmiesi hirsirakennus. Voit varata maksuttoman suunnitteluajan lomakkeella tai mikäli sinulle jäi kysyttää, soita meille ja jutellaan lisää.