
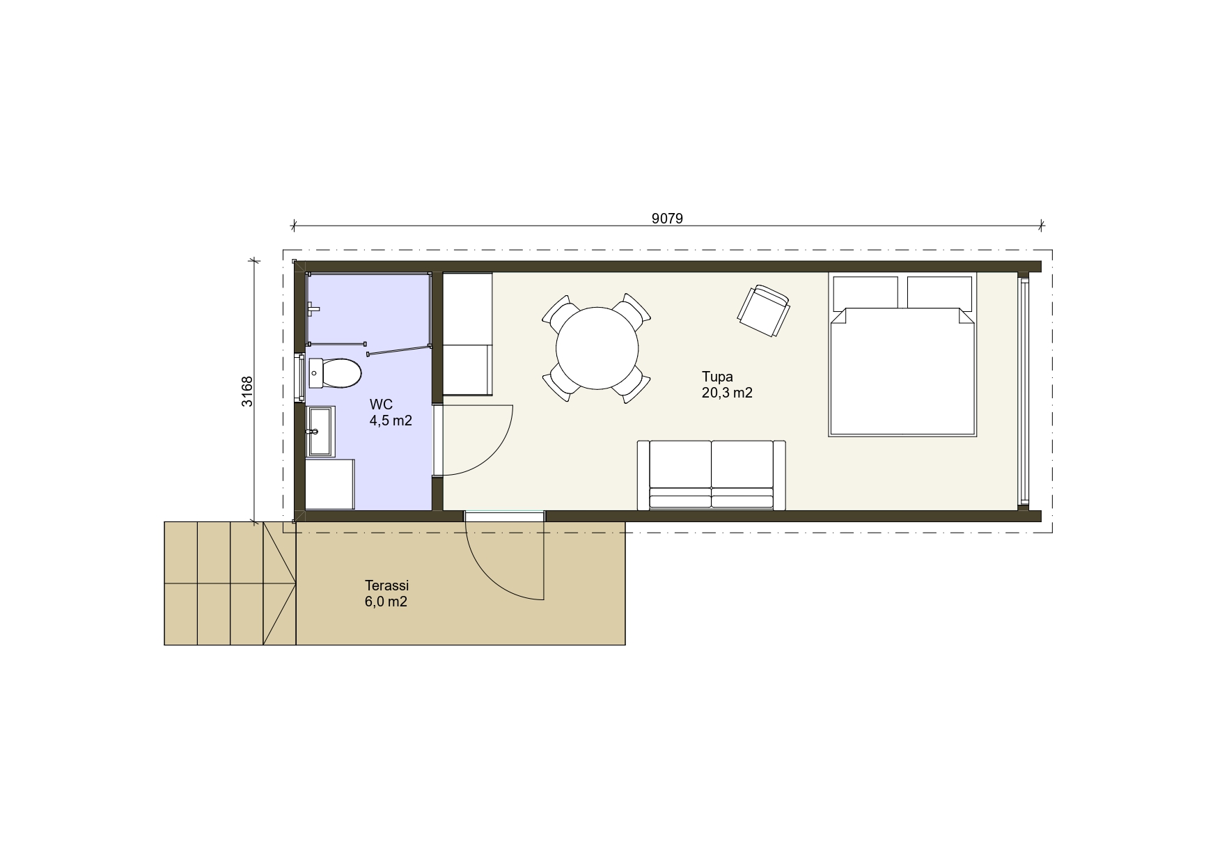
Kajastus pohjautuu yhden huoneen majoitusmalliin, joka sopii hyvin kohteisiin, joissa tilankäytön tehokkuus on tärkeää. Tupa on rakennuksen ydin: se toimii majoitustilana ja oleskelupisteenä, ja suuret ikkunat tuovat näkymän osaksi kokemusta. WC on sijoitettu sisäänkäynnin yhteyteen, mikä helpottaa majoittujien käyttöä ja nopeuttaa siivousta.
Pohjaratkaisu on erityisen sopiva leirintäalueille ja majoituskylille, joissa halutaan tiivis mutta ilmava kokonaisuus. Sisäänkäynnin edessä oleva katettu alue tuo suojaa ja selkeyttää kulkua. Rakennus toimii ympärivuotisesti ilman, että rakenne vaatii majoitusyrittäjältä erityistoimia vuodenajan mukaan.
Kajastus tuodaan tontille täysin valmiina, joten majoituskapasiteettia on mahdollista kasvattaa nopeasti ilman rakennusprojektin monivaiheisuutta.
Ota yhteyttä jo tänään ja suunnitellaan yhdessä unelmiesi hirsirakennus. Voit varata maksuttoman suunnitteluajan lomakkeella tai mikäli sinulle jäi kysyttää, soita meille ja jutellaan lisää.