
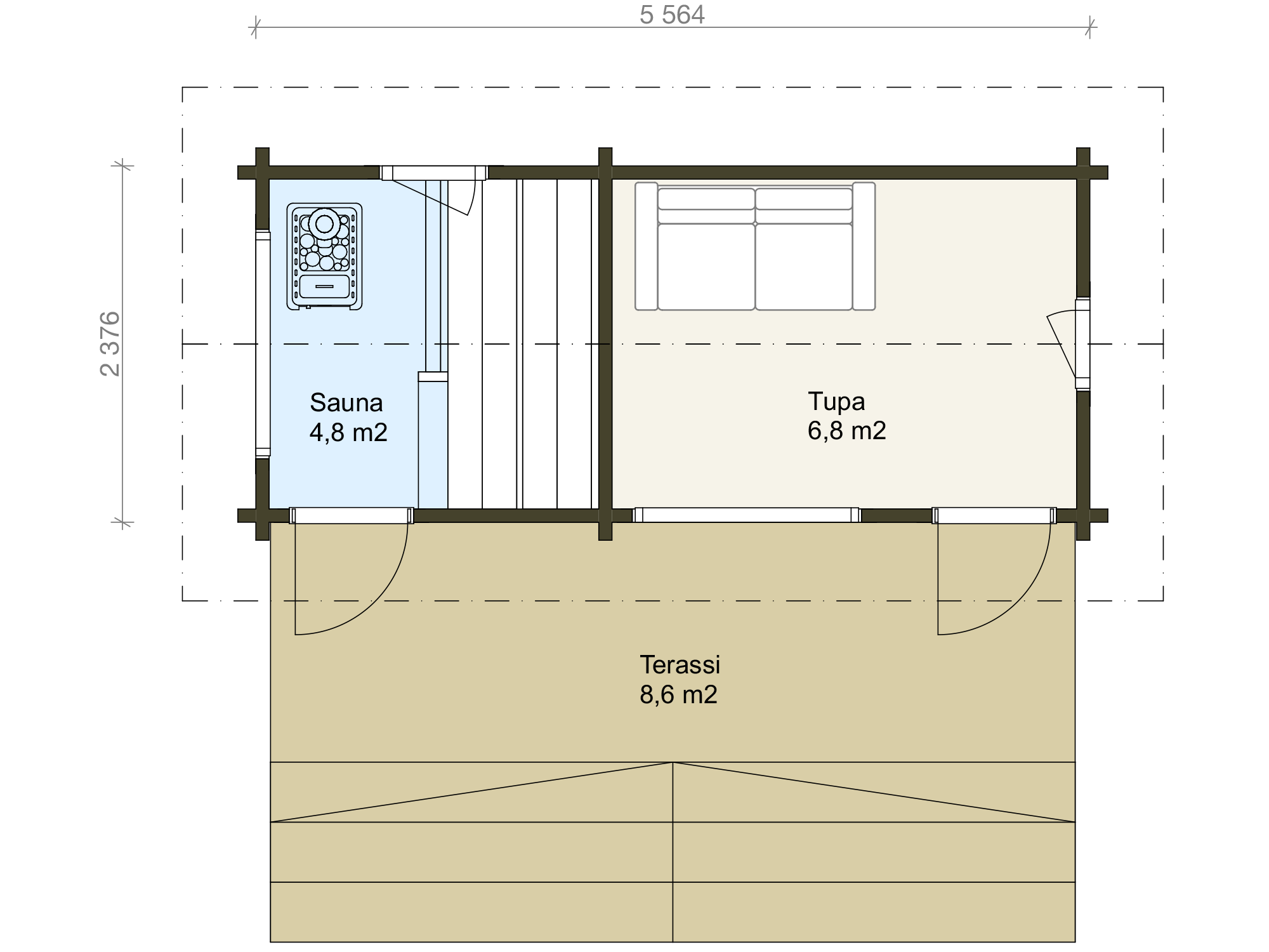
Tämä upea saunatupa tarjoaa kaiken tarpeellisen tyylikkäästi kompaktissa paketissa. Tilava tupa ja sauna yhdistyvät täydellisesti luoden harmonisen kokonaisuuden, joka täyttää kaikki saunojan toiveet ja tarpeet. Tämä saunatupa on suunniteltu tarjoamaan ensiluokkaista mukavuutta ja rauhaa.
Salvoksen saunatupamalleissa korostuu tilan älykäs hyödyntäminen, yksinkertaisuus ja käytännöllisyys. Mallistostamme löydät modernin ja nuorekkaan muotoilun ohella myös perinteisempiä vaihtoehtoja. Veisto-saunatupa toimitetaan valmiina tontillesi ja on käyttövalmis vain kahdessa tunnissa – nopea ja vaivaton ratkaisu, joka tuo eleganssia ja käytännöllisyyttä suoraan pihamaallesi.
Ota yhteyttä jo tänään ja suunnitellaan yhdessä unelmiesi hirsirakennus. Voit varata maksuttoman suunnitteluajan lomakkeella tai mikäli sinulle jäi kysyttää, soita meille ja jutellaan lisää.